121
政府信息公开
/col/col56363/index.html
信息公开目录
/col/col56364/index.html
公告公示
/col/col61226/index.html?number=RCA21
首页
>
政府信息公开
>
信息公开目录
>
公告公示
索引号:
12371082MB2843001W/2026-01413
发布单位:
荣成市行政审批服务局
内容分类:
公告公示
成文日期:
2026-04-02
公开方式:
主动公开
公开范围:
面向全社会
有效性/截止日期:
文号:
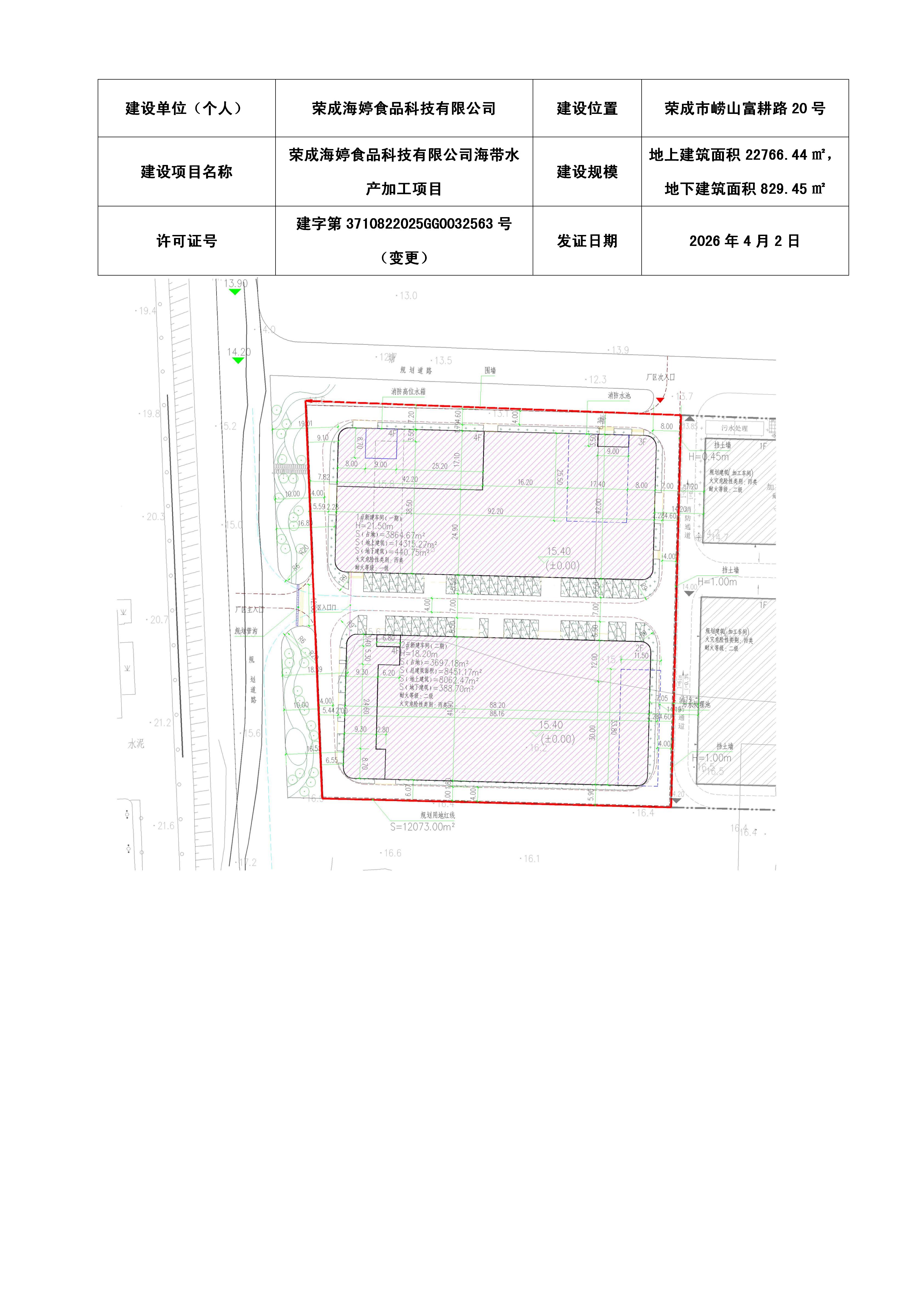
【批后公布】荣成海婷食品科技有限公司海带水产加工项目建设工程规划许可(变更)
时间:2026年04月02日 14:47
来源:荣成市行政审批服务局
浏览次数:
打印